Wenn man nicht die passenden Blechteile zur Verfügung hat, kann man heutzutage auch Blechteile online bestellen. Dazu muss lediglich eine Datei im DXF oder STEP Format hochgeladen, das Material und die Stärke sowie die Anzahl ausgewählt werden. Sowohl die Blechteile als auch die Blechpakete können speziell auf die Bedürfnisse angepasst werden. Somit können sich lästige Schweiß- oder Flexarbeiten erspart werden und die passenden Bleche in I-Form und E-Form werden direkt nach Hause geliefert.
In der darauf folgenden Tabelle werden Transformatoren mit Blechpaketen im M-Schnitt, deren Bleche wie ein M geschnitten sind, berechnet. Das M-förmige Blech bringt seinen Abschluß dagegen selber mit - es ist wie ein unterstrichenes M geformt. Auch diese Bleche werden immer gegensinnig aufeinander geschichtet.


Transformatoren mit Blechpaketen im E / I - Schnitt (Tabelle 1)
|
EI 48 |
EI 54 |
EI 60 |
EI 66 |
EI 78 |
EI 84a |
EI 84b |
EI 106a |
EI 106b |
EI 130a |
EI 130b |
||
|
maximale Leistung |
VA |
5 |
10 |
15 |
20 |
35 |
50 |
75 |
100 |
140 |
230 |
280 |
|
Blechhöhe (mit Joch) |
mm |
40 |
45 |
50 |
55 |
65 |
70 |
70 |
88 |
88 |
105 |
105 |
|
Blechbreite |
mm |
48 |
54 |
60 |
66 |
78 |
84 |
84 |
105 |
105 |
130 |
130 |
|
Paketstärke |
mm |
16 |
18 |
20 |
22 |
26 |
28 |
42 |
35 |
45 |
35 |
45 |
|
Eisenquerschnitt |
cm² |
2,54 |
3,24 |
4 |
4,8 |
6,8 |
7,8 |
11,8 |
12,3 |
15,8 |
12,3 |
15,8 |
|
Eisenweglänge |
cm |
9,6 |
10,8 |
12 |
13,2 |
15,6 |
16,8 |
16,8 |
21 |
21 |
27 |
27 |
|
Zungenbreite |
mm |
16 |
18 |
20 |
22 |
26 |
28 |
28 |
35 |
35 |
35 |
35 |
|
ausnutzbare Fensterhöhe |
mm |
21,5 |
24,5 |
27 |
30 |
35 |
38 |
38 |
49 |
49 |
66 |
66 |
|
ausnutzbare Fensterbreite |
mm |
6 |
7 |
8 |
9 |
10,5 |
11,5 |
11,5 |
21 |
21 |
27 |
27 |
|
Windungslänge, innen |
cm |
8 |
9,3 |
10,3 |
11,3 |
13,2 |
14,1 |
17,1 |
17,6 |
19,9 |
20,2 |
22,2 |
|
Windungslänge, Mitte |
cm |
9 |
10,3 |
11,6 |
12,5 |
14,7 |
15,9 |
18,9 |
21,7 |
23,5 |
23,9 |
25,9 |
|
Windungslänge, außen |
cm |
10,1 |
11,2 |
12,5 |
13,8 |
16,3 |
17,6 |
20,6 |
25,1 |
27,3 |
27,7 |
29,7 |
|
Fensterquerschnitt (brutto) |
cm² |
1,92 |
2,43 |
3 |
3,6 |
5,1 |
5,9 |
5,9 |
13,4 |
13,4 |
21 |
21 |
|
Wirkungsgrad |
Prozent |
65 |
68 |
72 |
75 |
78 |
81 |
83 |
85 |
87 |
90 |
91 |
|
Blechzahl bei 0,35 mm |
Stück |
43 |
49 |
54 |
60 |
70 |
75 |
109 |
95 |
118 |
95 |
118 |
|
Blechzahl bei 0,5 mm |
Stück |
27 |
31 |
34 |
37 |
44 |
48 |
75 |
60 |
78 |
61 |
78 |
|
Spannung je Windung |
mV/Wdg. |
57 |
74 |
92 |
110 |
156 |
180 |
275 |
284 |
365 |
284 |
365 |
|
Windungen je Volt |
Wdg./Volt |
17,5 |
13,6 |
10,9 |
9,1 |
6,5 |
5,6 |
3,7 |
3,5 |
2,7 |
3,5 |
2,7 |
|
Wingszahl 220V primär |
Wdg./220V |
3850 |
3000 |
2400 |
2000 |
1430 |
1250 |
815 |
770 |
595 |
770 |
595 |
|
Wingszahl 220V sekundär |
Wdg./220V |
4400 |
3400 |
2650 |
2200 |
1550 |
1350 |
865 |
800 |
610 |
800 |
610 |
|
Wingszahl 6,3 V sekundär |
Wdg./6,3V |
125 |
100 |
75 |
64 |
45 |
37 |
24 |
22 |
17 |
22 |
17 |
Transformatoren mit Blechpaketen im M - Schnitt (Tabelle 2)
|
M 42 |
M 55 |
M 65 |
M 74 |
M 85a |
M 85b |
M 102a |
M 102b |
||
|
maximale Leistung |
VA |
4 |
12 |
25 |
50 |
70 |
100 |
120 |
180 |
|
Blechbreite, -höhe |
mm |
42 |
55 |
65 |
74 |
85 |
85 |
102 |
102 |
|
Paketstärke |
mm |
15 |
20 |
27 |
32 |
32 |
45 |
35 |
52 |
|
Eisenquerschnitt |
cm² |
1,8 |
3,4 |
5,4 |
7,4 |
9,4 |
13 |
12 |
18 |
|
Eisenweglänge |
cm |
10,2 |
13,1 |
15,5 |
17,6 |
19,7 |
19,7 |
23,8 |
23,8 |
|
Zungenbreite |
mm |
12 |
17 |
20 |
23 |
29 |
29 |
34 |
34 |
|
ausnutzbare Fensterhöhe |
mm |
7 |
8,5 |
10 |
12 |
11 |
11 |
13,5 |
13,5 |
|
ausnutzbare Fensterbreite |
mm |
26,4 |
33,5 |
37 |
44 |
49 |
49 |
61 |
61 |
|
Windungslänge, innen |
cm |
7 |
9,3 |
11 |
12,8 |
14 |
15,4 |
16 |
19,3 |
|
Windungslänge, Mitte |
cm |
9,2 |
12 |
14,4 |
16,5 |
17 |
18,4 |
19,8 |
23,2 |
|
Windungslänge, außen |
cm |
11,1 |
13,8 |
16,7 |
19,8 |
20,3 |
21,7 |
23,5 |
27,1 |
|
Fensterquerschnitt (brutto) |
cm² |
2,7 |
4 |
5,6 |
7,1 |
7,5 |
7,5 |
11,5 |
11,5 |
|
Wirkungsgrad |
Prozent |
60 |
70 |
77 |
83 |
84 |
85 |
87 |
89 |
|
Blechzahl bei 0,35 mm |
Stück |
41 |
54 |
72 |
86 |
86 |
118 |
95 |
138 |
|
Blechzahl bei 0,5 mm |
Stück |
26 |
34 |
46 |
55 |
55 |
78 |
60 |
90 |
|
Spannung je Windung |
mV/Wdg. |
45 |
88 |
134 |
184 |
232 |
320 |
298 |
440 |
|
Windungen je Volt |
Wdg./Volt |
22,1 |
11,4 |
7,5 |
5,4 |
4,3 |
3,1 |
3,3 |
2,3 |
|
Wingszahl 235V primär |
Wdg./235V |
5235 |
3100 |
1760 |
1280 |
1025 |
730 |
780 |
535 |
|
Wingszahl 220V sekundär |
Wdg./220V |
6400 |
2980 |
1790 |
1280 |
1010 |
715 |
770 |
510 |
|
Wingszahl 6,3 V sekundär |
Wdg./6,3V |
190 |
87 |
52 |
37 |
29 |
20 |
22 |
15 |
|
Stromdichte innen (prim.) |
A/mm² |
4,5 |
3,8 |
3,3 |
3,0 |
2,9 |
2,6 |
2,4 |
2,3 |
|
Stromdichte außen (sek.) |
A/mm² |
5,2 |
4,3 |
3,6 |
3,3 |
3,3 |
3,0 |
2,8 |
2,7 |

Tabelle zur Ermittlung des erzielbaren Höchst-Stromes ( Ampere) für den verwendeten Kupferdraht
|
Nenndurchmesser
mm |
Durchmesser für CuL mm |
Nenn-Querschnitt mm² |
Widerstand pro Meter Ohm |
Windungszahl je cm² Wdg. |
|
0,03 |
0,045 |
0,0007 |
24,82 |
45000 |
|
0,04 |
0,055 |
0,0013 |
13,96 |
25000 |
|
0,05 |
0,062 |
0,0020 |
8,94 |
20000 |
|
0,06 |
0,075 |
0,0028 |
6,21 |
15000 |
|
0,07 |
0,085 |
0,0039 |
4,56 |
11000 |
|
0,08 |
0,095 |
0,0050 |
3,49 |
9000 |
|
0,09 |
0,108 |
0,0064 |
2,76 |
7000 |
|
0,10 |
0,115 |
0,0079 |
2,23 |
6000 |
|
0,11 |
0,13 |
0,0095 |
1,84 |
5000 |
|
0,12 |
0,14 |
0,0113 |
1,55 |
4400 |
|
0,13 |
0,15 |
0,0133 |
1,32 |
3600 |
|
0,14 |
0,16 |
0,0154 |
1,14 |
3200 |
|
0,15 |
0,17 |
0,0177 |
0,99 |
2800 |
|
0,16 |
0,18 |
0,0211 |
0,87 |
2500 |
|
0,17 |
0,19 |
0,0227 |
0,773 |
2250 |
|
0,18 |
0,20 |
0,0254 |
0,689 |
2000 |
|
0,19 |
0,21 |
0,0284 |
0,619 |
1800 |
|
0,20 |
0,22 |
0,0314 |
0,557 |
1650 |
|
0,21 |
0,23 |
0,0346 |
0,507 |
1500 |
|
0,22 |
0,24 |
0,038 |
0,460 |
1400 |
|
0,23 |
0,25 |
0,042 |
0,422 |
1300 |
|
0,24 |
0,26 |
0,045 |
0,388 |
1250 |
|
0,25 |
0,27 |
0,049 |
0,357 |
1100 |
|
0,26 |
0,285 |
0,053 |
0,330 |
1000 |
|
0,27 |
0,295 |
0,057 |
0,306 |
950 |
|
0,28 |
0,305 |
0,062 |
0,285 |
870 |
|
0,29 |
0,315 |
0,066 |
0,266 |
800 |
|
0,30 |
0,33 |
0,071 |
0,248 |
770 |
|
0,31 |
0,34 |
0,075 |
0,232 |
720 |
|
0,32 |
0,35 |
0,080 |
0,218 |
690 |
|
0,33 |
0,36 |
0,086 |
0,2051 |
650 |
|
0,34 |
0,37 |
0,091 |
0,1932 |
600 |
|
0,35 |
0,38 |
0,096 |
0,1824 |
580 |
|
0,36 |
0,39 |
0,102 |
0,1724 |
540 |
|
0,37 |
0,40 |
0,108 |
0,1632 |
520 |
|
Nenndurchmesser
mm |
Durchmesser für CuL mm |
Nenn-Querschnitt mm² |
Widerstand pro Meter Ohm |
Windungszahl je cm² Wdg. |
|
0,38 |
0,41 |
0,113 |
0,1547 |
500 |
|
0,39 |
0,42 |
0,120 |
0,1469 |
475 |
|
0,40 |
0,43 |
0,126 |
0,1396 |
450 |
|
0,42 |
0,45 |
0,139 |
0,1266 |
420 |
|
0,43 |
0,46 |
0,145 |
0,1209 |
390 |
|
0,45 |
0,48 |
0,159 |
0,1103 |
370 |
|
0,47 |
0,50 |
0,173 |
0,1012 |
330 |
|
0,48 |
0,51 |
0,181 |
0,0970 |
320 |
|
0,50 |
0,54 |
0,196 |
0,0894 |
300 |
|
0,55 |
0,59 |
0,238 |
0,0738 |
250 |
|
0,60 |
0,64 |
0,238 |
0,0621 |
210 |
|
0,65 |
0,69 |
0,334 |
0,0562 |
180 |
|
0,70 |
074 |
0,385 |
0,0455 |
160 |
|
0,75 |
0,79 |
0,444 |
0,0395 |
140 |
|
0,80 |
0,84 |
0,504 |
0,0348 |
120 |
|
0,85 |
0,90 |
0,570 |
0,0318 |
110 |
|
0,90 |
0,93 |
0,636 |
0,0275 |
100 |
|
0,95 |
1,00 |
0,711 |
0,0246 |
90 |
|
1,00 |
1,05 |
0,786 |
0,0223 |
83 |
|
1,10 |
1,16 |
0,951 |
0,0184 |
67 |
|
1,20 |
1,26 |
1,131 |
0,0155 |
55 |
|
1,30 |
1,36 |
1,329 |
0,0132 |
45 |
|
1,40 |
1,46 |
1,540 |
0,0114 |
40 |
|
1,50 |
1,56 |
1,770 |
0,0099 |
33 |
|
1,60 |
1,66 |
2,015 |
0,0087 |
28 |
|
1,70 |
1,76 |
2,275 |
0,0077 |
24 |
|
1,75 |
1,81 |
2,365 |
0,0073 |
20 |
|
1,80 |
1,86 |
2,545 |
0,0069 |
17 |
|
1,90 |
1,96 |
2,840 |
0,0062 |
14 |
|
2,00 |
2,07 |
3,142 |
0,0056 |
12 |
|
2,20 |
2,27 |
3,800 |
0,0046 |
10 |
|
2,50 |
2,57 |
4,910 |
0,0036 |
7 |




Die Anschlußbezeichnungen beziehen sich auf die folgende Netztrafo-Skizze :

|
Netztransformator zum Gerät VE 301 dyn (Leerlaufstrom: 220 V max. 80 mA) |
|
|
Primär |
110, 130 und 220 V (50Hz); Wicklungen a, b, c |
|
Sekundär |
1 x 350 V, 24 mA (Wicklung d) 1 x 4 Volt, 1,0 A (Wicklung e) 1 x 4 Volt, 1,4 A (Wicklung f) |
|
Windungszahlen |
|
|
Wicklung a |
600 Wdg. 0,32 CuL |
|
Wicklung b |
115 Wdg. 0,32 CuL |
|
Wicklung c |
500 Wdg. 0,24 CuL |
|
Wicklung d |
2100 Wdg. 0,10 CuL |
|
Wicklung e |
24 Wdg. 0,60 CuL |
|
Wicklung f |
24 Wdg. 0,70 CuL |
|
Netztransformator zum Gerät VE 301 W (Leerlaufstrom: 220 V max. 60 mA) |
|
|
Primär |
110, 130 und 220 V (50Hz); Wicklungen a, b, c |
|
Sekundär |
1 x 300 V, 24 mA (Wicklung d) 1 x 4 V, 350 mA (Wicklung e) 1 x 4 V, 1,3 A (Wicklung f) |
|
Windungszahlen |
|
|
Wicklung a |
750 Wdg. 0,24 CuL |
|
Wicklung b |
150 Wdg. 0,24 CuL |
|
Wicklung c |
680 Wdg. 0,18 CuL |
|
Wicklung d |
2400 Wdg. 0,08 CuL |
|
Wicklung e |
34 Wdg. 0,35 CuL |
|
Wicklung f |
34 Wdg. 0,70 CuL |
|
Netztransformator zum Gerät VE 301 Wn (Leerlaufstrom: 220 V max. 60 mA) |
|
|
Primär |
110, 130 und 220 V (50Hz); Wicklungen a, b, c |
|
Sekundär |
1 x 300 V, 12 mA (Wicklung d) 1 x 4 V, 350 mA (Wicklung e) 1 x 4 V, 0,95 A (Wicklung f) |
|
Windungszahlen |
|
|
Wicklung a |
795 Wdg. 0,24 CuL |
|
Wicklung b |
160 Wdg. 0,24 CuL |
|
Wicklung c |
625 Wdg. 0,18 CuL |
|
Wicklung d |
2400 Wdg. 0,08 CuL |
|
Wicklung e |
32 Wdg. 0,35 CuL |
|
Wicklung f |
32 Wdg. 0,70 CuL |
|
HSGM Heißschneide-Geräte u.- Maschinen GmbH |
||||||||
|
Preisliste Transformatoren Gültig ab 1.03.2000 |
||||||||
|
Baureihe |
Typ |
DM |
EUR |
Rabatt |
Cu-Gewicht |
VPE |
||
|
Siebdrosseln |
ND 30 |
28,40 |
14,52 |
RA 01 |
0,06 |
1 |
||
|
Baureihe ND/Ü |
ND 60 |
30,90 |
15,80 |
RA 01 |
0,13 |
1 |
||
|
ND 100 |
37,40 |
19,12 |
RA 01 |
0,15 |
1 |
|||
|
ND 150 |
43,70 |
22,34 |
RA 01 |
0,28 |
1 |
|||
|
ND 220 |
59,60 |
30,47 |
RA 01 |
0,30 |
1 |
|||
|
Ausgangs- |
AÜ 6 |
37,50 |
19,17 |
RA 01 |
0,13 |
1 |
||
|
Übertrager |
AÜ 15 |
59,60 |
30,47 |
RA 01 |
0,24 |
1 |
||
|
Baureihe ND/Ü |
AÜ 30 |
77,10 |
39,42 |
RA 01 |
0,35 |
1 |
||
|
A 2 |
30,90 |
15,80 |
RA 01 |
0,06 |
1 |
|||
|
A4 |
37,50 |
19,17 |
RA 01 |
0,13 |
1 |
|||
|
A10 |
92,80 |
47,45 |
RA 01 |
0,24 |
1 |
|||
|
GA 10 Spez. |
132,70 |
67,85 |
RA 01 |
0,33 |
1 |
|||
|
GA 35 |
137,00 |
70,05 |
RA 01 |
0,60 |
1 |
|||
|
GA 50 |
176,00 |
89,99 |
RA 01 |
0,90 |
1 |
|||
|
GA 100 |
223,00 |
114,02 |
RA 01 |
1,80 |
1 |
|||
|
GA-M8 PPP |
116,00 |
59,31 |
RA 01 |
0,55 |
1 |
|||
| Typ ND/ü Siebdrosseln Ausgangsübertrager Siebdrosseln und Ausgangsübertrager |
|
| ND-Siebdrosseln behalten
durch den Luftspalt im Blechpaket bei verschiedenen Belastungen einen fast gleichbleibende Induktivität. A und GA-übertrager sind zur Erreichung eines guten Frequenzganges im verschachtelten Wicklungen versehen. Der Einsatz von hochwertigen, geschachtelten Kernblechen garantiert kleine Klirrgrade bei tiefen Frequenzen. | |
Technische Daten: Ausführung nach VDE 0550 Vorbereitet für Geräte der Schutzklasse I Schutzart IP 00 Isolierstoffklasse E Nennumgebungstemperatur ta 40°C Befestigungswinkel, Befestigungsrahmen und Lötösen Trafohauben auf Anfrage lieferbar |
Siebdrosseln
| Typ | Induktivität Hy (ca.) |
Gleichstrom- widerstand (Ohm) |
Belastbarkeit max. mA |
Kerngröße | Gewicht kg |
| ND 30 ND 60 ND 100 ND 150 ND 220 |
15 15 10 10 10 |
1000 400 175 140 130 |
30 60 100 150 200 |
EI 40/16 EI 60/20 EI 60/30 M 65/35 M 74/32 |
0,240 0,450 0,650 1,140 1,300 |
Ausgangsübertrager ohne
Anodenstrom-Vorbelastung
| Typ | Leistung W |
Anpassungswerte | Kerngröße | Gewicht kg | |
| Primär (Ohm) | Sekundär (Ohm) | ||||
| Aü 6 Aü 15 Aü 30 |
6 15 30 |
800-1600-3200 660-1220-2500 330-660-1220 |
4 2-4 2-4 |
EI
60/20 EI 65/26 EI 74/32 |
0,450 0,900 1,300 |
Ausgangsübertrager mit
Anodenstrom-Vorbelastung
| Typ | Leistung W |
Anpassungswerte | Max. Anodenstrom mA |
Kerngröße | Gewicht kg | ||
| Ra (Raa) kOhm | Sekundär (Ohm) | Endröhren | |||||
| A 2 A 4 A 10 |
2 4 10 |
8 -
15 5,2 - 7 0,3...20 |
4 4 0,5...35 |
ECL113,EL8,EL42, EL 95 u.a ECL41,EL84,EL86, u.a Universaltyp |
30 50 70 |
EI
48/16 EI 60/20 EI 65/26 |
0,250 0,450 0,900 |
Gegentakt-Ausgangsübertrager
| Typ | Leistung W |
Anpassungswerte | Max. Anodenstrom mA |
Kerngröße | Gewicht kg | ||
| Ra (Raa) kOhm | Sekundär (Ohm) | Endröhren | |||||
| GA 10
spez. GA 35 GA 50 GA 100 GA-M8 PPP |
18
HiFi 35 50 100 20 |
8 3,4 5 (Ua max. 650V) 10 (Ua max. 1000V) 0,90 |
7 4-8-16 Ohm - 100V (286 Ohm) 1-4-15-200 0,4-1-100 GeKo=16 3,75-7,5-15 |
2 x
EL84 2 x EL34 2 x EL34, EL51, EL60 u.a. 2 x EL34, EL51, EL60, EL156 u.a. 2 x El34 |
2 x
50 2 x 100 2 x 100 2 x 120 2 x 100 |
EI
84/28 M 102/35 M 102/54 EI 130/46 M 85/32 |
1,200 2,900 3,400 5,50 1,700 |
![]() |
![]() |
| Siebdrosseln und Ausgangsübertrager mit seitlichen Lötfahnenanschlüssen. (Kerngrößen M 65 bis M 102 sowie EI 84)
|
Siebdrosseln und Ausgangsübertrager mit obenliegenden Lötfahnenanschlüssen. (Kerngrößen M 48 bis EI 60) |
![]() |
|
| Siebdrosseln mit 2 Lötfahnenanschlüssen im oberen Spulenflansch. (Kerngrößen EI 48 bis EI 60) |
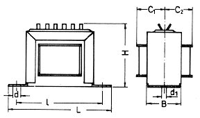
Kerngrößen M 65 bis EI 130
| Kern-Typ | Maße in mm | ||||||||||
| L | B | h | H | C1 | C2 | I | I1 | b | d | d1 | |
| M
65/26 M 65/35 M 74/32 M 85/32 M 102/35 M 102/54 EI 130/46 |
65 65 74 85 102 102 105 |
57 67 63 62 77 93 96,5 |
71 71 78 90 108 108 135 |
24,5 30 29 29 32,5 41,5 58 |
28,5 33 34 33 39 48 58 |
40 50 60 60 |
55 55 60 72,5 80,5 80,5 78 |
44 54 49 49 60 77 81 |
6,0 6,0 6,3 7 8 8 11 |
4,6 4,6 4,3 4,2 5,3 5,3 5,8 | |
Kerngrößen EI 48 bis EI 84
| Kern-Typ | Maße in mm | ||||||||||
| L | B | h | H | C1 | C2 | I | I1 | b | d | d1 | |
| EI
48/16 EI 60/20 EI 60/30 EI 84/28 |
75 96 96 71 |
18 23 33 58 |
42 52 52 88 |
58 58 |
18 20,5 26 30 |
18 20,5 26 30 |
62 81 81 |
80 |
45 |
7 6,5 6,5 6,0 |
3,2 4,2 4,2 4,6 |
Hinweis
Wir (Fa. HSGM) können auch defekte ENGEL-Transformatoren und übertrager aus historischen Geräten
wie z.B. aus Schaltungen aus der Funk-Technik oder Funkschau gemäß Orginal-Bauvorschriften nachfertigen.
So können Sie Ihre wertvollen Geräte orginalgetreu wieder instandsetzen und erhalten.
*****************************************************************
Tip : Ausgangsübertrager gibt es jetzt auch als Ringkerntrafo's, die sehr hochwertig sind, unter www.plitron.com.
- Diesen Tip bekam ich vom Konrad Wittig, bei dem ich hiermit nochmals herzlich bedanken möchte.
*****************************************************************
Und noch ein heißer Tip : Die Firma PBE-Electronic (www.pbe-electronic.de) ist der deutsche Distributor fuer
Hammondtrafos (www.hammondmfg.com) Es gibt sowohl Netztrafos als auch AÜ's. Eeinfach mal eine Mail zukommen lassen
und nach dem Katalog fragen (oder einfach auf der Hammondseite schauen, da steht auch, was die haben).
Diesen Tip erhielt ich vom Thomas.
*****************************************************************
